3 недостроя 1500 м² на зу пром.назначения 47 сот

ул Дружбы, д. 19

26 000 000 руб.

?

$ 1 086

€ 979

17 333 руб./м²


1500 м²

1/3 этажей

Код объекта

113002

Предложение доступно для субагентов, авторизуйтесь

3 недостроя 1500 м² на зу пром.назначения 47 сот

Код объекта: 113002.
Тип объекта: Отдельно стоящее здание.
Площадь: 1500 м².
Этаж / Этажность: 1 / 3.

Описание и характеристики

От собственника! Без комиссии!

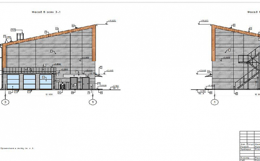
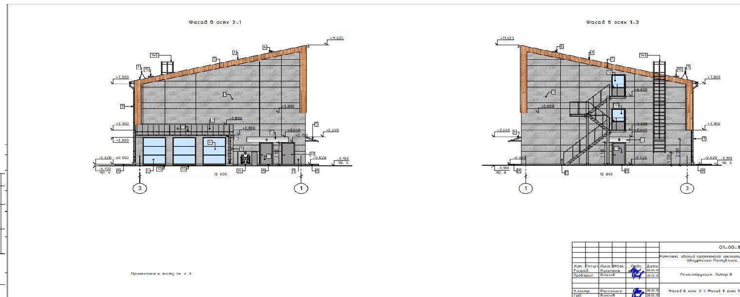
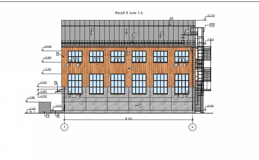
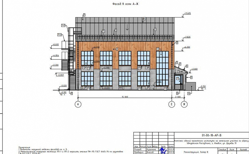
Продаются здания свободного назначения ( недострой)

Три недостроенных здания - под крышей, но частично без стен.
Каждое здание 500м2, в общей сумме 1500м2.
Можно объединить все три здания по первому этажу и общая площадь первого этажа составит около 1000м2.
Планировалось под офисы фирмы и ремонтные мастерские, но можно делать любое назначение от ТЦ, до медицинского центра или привокзальной гостиницы ( которой до сих пор нет в городе).
Непосредственная близость объекта к ЖД вокзалу (100м) и районному рынку Сфера (100м).
Большая собственная территория 47 соток огороженная забором.
Въездные ворота с двух сторон.
Большая крытая автостоянка с тёплым двух этажным зданием для службы безопасности.
Развитая инфраструктура района и развитая транспортная сеть - вашим сотрудникам будет легко добираться до работы.
Близлежащие специфичные центры деловой активности - РЖД Вокзал, Почта России/EMS
Все инженерные коммуникации - канализация, вода, газ ( на газ есть разрешение на подключение).
Здания построены из металла и бетона. Осталось обшить стенами и сделать внутренний ремонт.
Можно использовать под производственные цеха, и при дальнейшей конверсии превратить торговый центр.
Проект прилагается
Земля в долговременной аренде на 49 лет - идеально для оптимизации налоговой нагрузки
АРР0

По всем вопросам можете обращаться к представителю собственника: Невоструев

Перейти в карточку объекта в CRM: 113002.

Миляуша

+7 937 008-56-34

или оставьте ваш номер, и я перезвоню в течение 30 минут

Отправляя заявку вы соглашаетесь на обработку персональных данных

26 000 000 руб.

?

$ 336 468

€ 289 838

17 333 руб./м²


1500 м²

1/3 этажей

Код объекта

113002

Предложение доступно для субагентов, авторизуйтесь

Миляуша

+7 937 008-56-34

или оставьте ваш номер, и я перезвоню в течение 30 минут

Отправляя заявку вы соглашаетесь на обработку персональных данных

Похожие объявления

Посмотреть все похожие объявления
1/19
Код объекта: 278628.
Тип объекта: Отдельно стоящее здание.
Площадь: 312.5 м².
Этаж / Этажность: 1 / 2.
1/16
Код объекта: 257781.
Тип объекта: Отдельно стоящее здание.
Площадь: 277.2 м².
Этаж / Этажность: 1 / 2.
1/10
Код объекта: 367470.
Тип объекта: Отдельно стоящее здание.
Площадь: 248.6 м².
Этаж / Этажность: 1 / 1.
1/18
Код объекта: 399325.
Тип объекта: Отдельно стоящее здание.
Площадь: 360 м².
Этаж / Этажность: 1 / 2.
1/12
Код объекта: 345207.
Тип объекта: Отдельно стоящее здание.
Площадь: 734 м².
Этаж / Этажность: 1 / 3.
1/13
Код объекта: 254467.
Тип объекта: Отдельно стоящее здание.
Площадь: 1408.8 м².
Этаж / Этажность: 1 / 1.
1/10
Код объекта: 354513.
Тип объекта: Отдельно стоящее здание.
Площадь: 1400 м².
Этаж / Этажность: 1 / 1.
1/44
Код объекта: 373368.
Тип объекта: Отдельно стоящее здание.
Площадь: 1191.8 м².
Этаж / Этажность: 1 / 1.
1/3
Код объекта: 214215.
Тип объекта: Торговое помещение.
Площадь: 13 м².
Этаж / Этажность: 1 / 2.
1/13
Код объекта: 230100.
Тип объекта: Помещение свободного назначения.
Площадь: 9800 м².
Этаж / Этажность: 1 / 2.
1/22
Код объекта: 234159.
Тип объекта: Отдельно стоящее здание.
Площадь: 2773 м².
Этаж / Этажность: 1 / 3.
1/13
Код объекта: 223178.
Тип объекта: Помещение свободного назначения.
Площадь: 202 м².
Этаж / Этажность: 2 / 2.
1/13
Код объекта: 223176.
Тип объекта: Помещение свободного назначения.
Площадь: 22.6 м².
Этаж / Этажность: 2 / 2.

Не хочу искать, перезвоните мне!

Оставьте номер телефона, наш специалист свяжется с вами и поможет с подбором недвижимости!