Продается отдельно стоящее здание, АПК, 2800 кв.м, в 5 мин от центра города

ул Маяковского, д. 10Г

189 000 000 руб.

?

$ 1 086

€ 979

67 500 руб./м²


2800 м²

1/2 этажей

Код объекта

126231

Предложение доступно для субагентов, авторизуйтесь

Продается отдельно стоящее здание, АПК, 2800 кв.м, в 5 мин от центра города

Код объекта: 126231.
Тип объекта: Производственное помещение.
Площадь: 2800 м².
Этаж / Этажность: 1 / 2.

Описание и характеристики

Характеристики:
- производственное/складское/торговое здание
- ХВС/ГВС
- Свой санузел
- Автономное отопление
- Высота потолков 7 м
- Высота ворот 3 м
- Напольное покрытие - Бетонный пол
- Максимальная мощность 100 кВт
- Техника для погрузки: 2 кран балки по 3,5 тонны
- Подъездные пути под грузовой транспорт, легковой транспорт
- Дополнительные преимущества: Площадка рядом с помещением, Место для маневра транспорта
- Видеонаблюдение

Дополнительная информация:
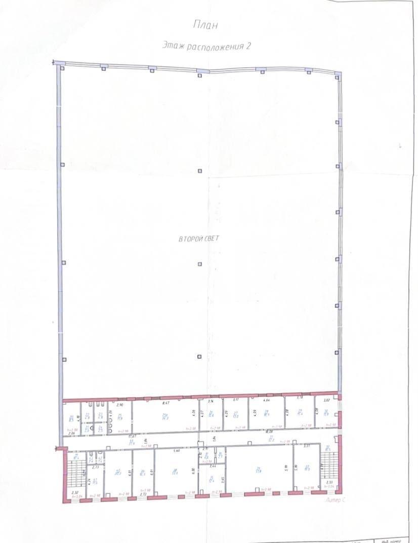
Продается отдельно стоящее здание, согласно градостроительному плану, основные виды назначения: производственное, складское, торговое и т.д. 2800 кв.м.  База расположена в одной из промышленных зон деловой активности, отличная транспортная развязка, в 5 минутах езды от центра города, асфальтовая дорога до территории базы. Территория огорожена, асфальтированная парковка. Видеонаблюдение на всей территории.
Собственная котельная, скважина.
Здание теплое, капитальной постройки, включает в себя торговые, производственные, складские, офисные  помещения, рампа вдоль склада и производственно-торговых помещений.

В производственных, торговых, складских помещениях бетонные полы, вдоль стен установлены стеллажи, имеются две кран-балки по 3,5 тонны, приточная система вентилирования, наличие системы кондиционирования.

Кроме того территория базы включает теплый склад, собственная котельная и земельный участок в собственности 0,6 га.

Весь комплекс сдан в аренду, можно рассмотреть как инвестиции с готовым арендным бизнесом.
АРР0

По всем вопросам можете обращаться к представителю собственника: Елена

Перейти в карточку объекта в CRM: 126231.

Миляуша

+7 937 008-56-34

или оставьте ваш номер, и я перезвоню в течение 30 минут

Отправляя заявку вы соглашаетесь на обработку персональных данных

189 000 000 руб.

?

$ 2 336 619

€ 2 023 884

67 500 руб./м²


2800 м²

1/2 этажей

Код объекта

126231

Предложение доступно для субагентов, авторизуйтесь

Миляуша

+7 937 008-56-34

или оставьте ваш номер, и я перезвоню в течение 30 минут

Отправляя заявку вы соглашаетесь на обработку персональных данных

Похожие объявления

Посмотреть все похожие объявления
1/14
Код объекта: 376862.
Тип объекта: Производственное помещение.
Площадь: 5617.2 м².
Этаж / Этажность: 1 / 3.
1/28
Код объекта: 350597.
Тип объекта: Производственное помещение.
Площадь: 2827 м².
Этаж / Этажность: 1 / 1.
1/39
Код объекта: 355467.
Тип объекта: Производственное помещение.
Площадь: 3100 м².
Этаж / Этажность: 1 / 3.
1/24
Код объекта: 370434.
Тип объекта: Производственное помещение.
Площадь: 2016 м².
Этаж / Этажность: 1 / 1.
1/14

176 000 000 руб.

27 500 руб./м²

Код объекта: 394136.
Тип объекта: Производственное помещение.
Площадь: 6400 м².
Этаж / Этажность: 1 / 1.
1/30
Код объекта: 367530.
Тип объекта: Производственное помещение.
Площадь: 2600 м².
Этаж / Этажность: 1 / 1.
1/28
Код объекта: 350597.
Тип объекта: Производственное помещение.
Площадь: 2827 м².
Этаж / Этажность: 1 / 1.
1/39
Код объекта: 355467.
Тип объекта: Производственное помещение.
Площадь: 3100 м².
Этаж / Этажность: 1 / 3.
1/24
Код объекта: 370434.
Тип объекта: Производственное помещение.
Площадь: 2016 м².
Этаж / Этажность: 1 / 1.
1/3
Код объекта: 214215.
Тип объекта: Торговое помещение.
Площадь: 13 м².
Этаж / Этажность: 1 / 2.
1/13
Код объекта: 230100.
Тип объекта: Помещение свободного назначения.
Площадь: 9800 м².
Этаж / Этажность: 1 / 2.
1/22
Код объекта: 234159.
Тип объекта: Отдельно стоящее здание.
Площадь: 2773 м².
Этаж / Этажность: 1 / 3.
1/13
Код объекта: 223178.
Тип объекта: Помещение свободного назначения.
Площадь: 202 м².
Этаж / Этажность: 2 / 2.
1/13
Код объекта: 223176.
Тип объекта: Помещение свободного назначения.
Площадь: 22.6 м².
Этаж / Этажность: 2 / 2.

Не хочу искать, перезвоните мне!

Оставьте номер телефона, наш специалист свяжется с вами и поможет с подбором недвижимости!